--   |  设为首页

帮忙装修网

中山

[切换]

越简约,越懂生活!介绍两组简约设计搭配案例

来自:中山帮忙装修网 日期:2019-05-01 23:51:52 15649 次 分享到:
导读:
中山装修公司网分享2套简约风格装修设计案例,希望能给大家装修带来一些灵感。中山装修效果图,中山装修报价,中山帮忙装修网。

1

I love life—悠然自得,生活以上


生活的模样?

有工作、学习、享受,

有休闲,度假和天伦之乐。

生活的模样,

不该是生存以上、生活以下,

如进行曲般规律的平庸。


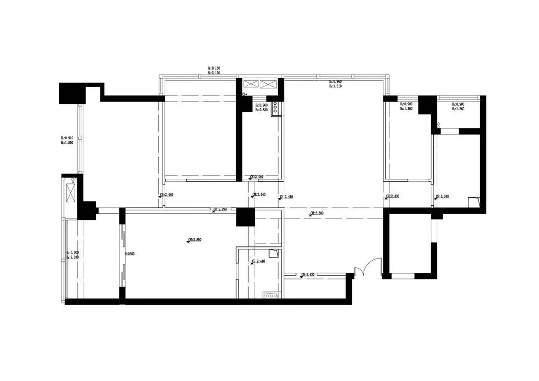
装修面积:130平方

原始图



原始图分析


1.原始户型为西边间,拥有2厅2卫1厨2阳台,且最多可划分3个卧室,在空间上完全能满足一家三口的居住需要。


2.户型拥有朝南双阳台、大飘窗,采光十分充足,但户型南北较狭长,在空间观感上缺乏整体感,若房间分割过多,则空间局促,影响舒适度。


平面图 



平面图分析

1.针对业主的诉求,设计师尝试将空间化零为整,在保留常用功能区域的同时,最大限度拓展每个区域的空间尺度,强调舒适与功能的和谐统一。

2.将北面区域全部打通,打造成为融合厨房、餐厅、工作台为一体的多功能区域。隐匿的储藏室和合理扩大的外卫都保证了居住者的便利。

3.并入部分阳台后的客厅呈现全景视野,大衣帽间与大卫浴的套房设计则已成为提高居住品质不可或缺的要素。

过道  

入户之后首先面对的是过道,为了减少狭窄空间的压抑感并确立简约风格的第一映像,设计师在这里舍弃过多造型,采用大面积留白并通过黑色壁龛和挂画增加空间的立体感,起到视觉的延伸和色彩的平衡。

客厅  

客厅仍然以白色为主色调,通过原木色的融入以及灰色的过渡,呈现简洁明快的生活气息。

设计师将户型原本的阳台一分为二,留一部分做洗衣阳台,一部分并入客厅拓展空间。沙发背景面一侧的次卧门设计为木制暗门,与客厅完美融合。

电视背景的左侧原有一处管道突于墙面,设计师通过将电视背景墙内凹壁龛设计,及右侧设置了对称的储物柜,增加客厅置物收纳的同时也消解了管道的突兀。在接口细节上,多处采用黑色不锈钢压边处理,简洁美观。

厨房  

业主对餐厨空间的重视最终体现在了成品设计上。贯通的餐厨设计赋予了居者对于生活更多的想象空间。

餐厅  

有开有合的餐厅储物柜包容居者各类喜好。你可以在此放置美酒放松小酌,也可以是书本以供茶余饭后的品读。而为了将该区域打造成重要的社交空间,设计师还在此预留了投影幕布凹槽,为今后业主的生活增添了更多的趣味与活力。

主卧  

主卧的设计去繁求简,没有强烈的要素碰撞,只留下家的自然宁静。

设计师将主卧窗台做成大飘窗,可以卧坐于此赏景发呆,其下也可以收纳杂物。


更衣室  


更衣室也是多功能设计,化妆台兼具书桌的功能,通过暗门可将更衣室与卧室隔离,打造舒适、安静的私密空间。

次卧  


次卧,是一个中学生的房间,选用了蓝色系的单色背景墙,简约又不失青春。

内卫  


2

黑白默片

用一支黑色的铅笔

画一出沉默舞台剧

灯光再亮

也抱住你


在今天这个信息快速发展的时代,我们每天接触到的都是光鲜亮丽、色彩鲜艳的画面,从这些画面里面我们可以得到很多信息及更多的感官体验。

但有那么一个伟大的时代,电影是无声黑白的,人心是简单纯粹的。它在多与少,黑与白之间,演绎着不同的人生哲学。


项目面积 丨150㎡

原始图


平面图

客厅  

在默片时代,演员依靠丰富且细腻的肢体语言和面部表情,让观众感知角色的内心思想。此刻的黑白空间,少了花俏色彩的点缀,剩下空间与空间,面与线的对话,颜色的变化也只是在白到黑的色度变化,黑白基调散发诗意。


厨房、客厅的开放式设计,让空间与空间之间产生对话,在白色的面中穿插着黑色的线条,错落有序。


晨曦透过窗帘射入客厅,黑白灰的主色调完美承接、过渡了这道自然光线。


黑色的不锈钢门框与踢脚线,完美承接着面与面之间的延伸与连接,过道的木制屏风守护着客厅与外界的私密性。


餐厅   

餐厅采用大片的留白,使得视线更加开阔,布局更加流畅。大面积采用了大理石纹理瓷砖,反射产生的镜面效果对空间进行提亮。白色的橱柜加上黑色线条的描边,黑色的吊灯给空间增加了几分律动。


黑白基调的空间是弥漫着香气的交流空间,无论烹饪或是用餐,心都会贴的更近。在一起,就是一起吃很多很多顿饭


外卫


主卧 

主卧的背景是干净素然的白色墙板与黑色木纹组成,黑色的低调深邃与白色的明亮白净,搭配上低饱和度的灰色软装,在空间中产生互动的对话。


书房   

通彻明亮的落地窗使得书房内的采光十分通透,书房整体以黑色为主体,暗含沉稳的工作态度。背后的书柜,木纹穿插着不锈钢材质,自然与工业的碰撞,展现出时尚性和当代性。


次卧 

黑色的墙板、柜门、床靠,白色的墙面和床品,不同的黑与白交织搭配,构成了房间的黑白基调。


黑与白,总能搭配出一种莫名的高级感,在它内敛随性的色调里,隐藏着一个随性张扬的灵魂。


阳台 

或许在这个彩色的时代黑白

不再像过去那般流行

但那又怎样

没有任何理由可以阻止你对黑白的偏执

中山装修公司哪家好?中山装修效果图大全、中山装修招标就上中山帮忙装修网,免费获得三家本地优秀装修公司量房、设计、报价,对比之后再装修。点击免费发布招标。

或拨打免费热线:13822775923

已成功招标53521